recherche immobilières sur mobile

Location Appartement Rognes 2 pièces 43 m2 Bouches du Rhone (13840) - 815 € / mois

location appartement 2 pièces 43 m² région Bouches du rhone

815 €/mois


Location Appartement 2 pièces ROGNES 13840
Annonce Location 2 pièces Appartement Rognes 13

Description

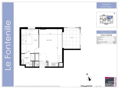
Résidence neuve LE FONTENILLE 12 Traverse de la fanée, 13840 ROGNES, située à 5 minutes en voiture du Centre-ville. MISE EN LOCATION LE 1er avril 2026 avec une commercialisation sur plan. Très bel appartement de Type 2 en 1er Etage - 1 chambre - Surface habitable 43m2 Cuisine équipée ouverte sur séjour: Meubles de cuisine bas avec plan de travail et meuble de rangement haut. Equipements livrés : Hotte et plaque de cuisson Chauffage : électrique individuel Balcon de 9.30 m2 Loyer 709E Charges 106E A ajouter place de parking en extérieur: 43 E/mois SOIT UNE ECHEANCE MENSUELLE TOTALE DE 858 E. Validation sur Etude de dossier, sous conditions de ressources plafonds LLI, pour déposer votre candidature : Réponse motivée par mail à Avec nom, prénom et coordonnées téléphoniques. Pas de frais d'agence, facturation du dépôt de garantie et du 1er loyer au prorata avant l'entrée des lieux. Commercialisation sur plan uniquement (Pas de visite possible). Merci de situer l'environnement avant de postuler à cette offre.
Retour
Autres photos
Plan
Favoris

Contacter l'agence

GRAND DELTA HABITAT
3, rue Martin Luther King
84000 AVIGNON

Toutes les annonces immobilières de GRAND DELTA HABITAT
04.90.27.20.09 ou 04.90.27.20.20


Recevoir des annonces similaires

Location à proximité de Rognes