recherche immobilières sur mobile

Location Appartement Nantes 2 pièces 49 m2 Loire atlantique (44300) - 671 € / mois

location appartement 2 pièces 49 m² région Loire atlantique

671 €/mois


Location Appartement 2 pièces NANTES 44300
Annonce Location 2 pièces Appartement Nantes 44
Louer Appartement 49 m2 Nantes
Louer Appartement Nantes Loire atlantique
Louer Appartement Nantes 671 euros

Description

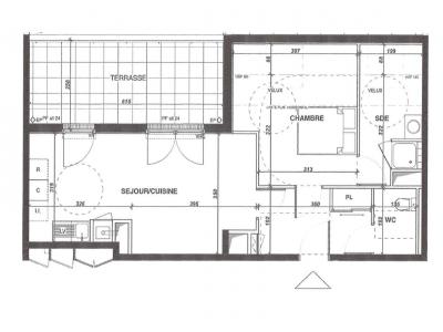
NANTES - QUARTIER HALUCHERE. Proche de la ligne de tramway 1 et des commerces, dans une résidence récente, venez visiter ce très bel appartement de type 2 situé au 5ème et dernier étage sans vis à vis comprenant : une entrée avec placard, un séjour lumineux donnant sur une grande terrasse de 15.33m², une cuisine ouverte aménagée (plaques vitro, hotte et four), une vaste chambre avec salle d'eau attenante, wc séparés. Parking Couvert. CONDITIONS RESSOURCES : LOI PINEL. Les informations sur les risques auxquels ce bien est exposé sont disponibles sur le site Géorisques :
Retour
Autres photos
Plan
Favoris

Contacter l'agence

votre agent immobilier CABINET THIERRY (NANTES 44000)
CABINET THIERRY
du Couedic
44000 NANTES
Nous parlons :

Toutes les annonces immobilières de CABINET THIERRY
02.40.47.94.43


Recevoir des annonces similaires

Location à proximité de Nantes