recherche immobilières sur mobile

Location Appartement Nantes 3 pièces 63 m2 Loire atlantique (44200) - 936 € / mois

location appartement 3 pièces 63 m² 2 chambres région Loire atlantique

936 €/mois


Location Appartement 3 pièces NANTES 44200
Annonce Location 3 pièces Appartement Nantes 44

Description

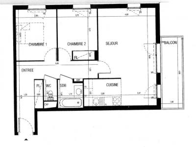
NANTES - Quartier ILE DE NANTES - type 3 comprenant : une entrée avec placard, un séjour donnant sur un balcon de 7.20m², une cuisine semi-ouverte aménagée et équipée de plaques vitrocéramiques et d'une hotte, 2 chambres dont une avec placard, une salle de bains, wc séparés. Garage et cave. Les informations sur les risques auxquels ce bien est exposé sont disponibles sur le site Géorisques :
Retour
Autres photos
Plan
Favoris

Contacter l'agence

votre agent immobilier CABINET THIERRY (NANTES 44000)
CABINET THIERRY
du Couedic
44000 NANTES
Nous parlons :

Toutes les annonces immobilières de CABINET THIERRY
02.40.47.94.43


Recevoir des annonces similaires

Location à proximité de Nantes