recherche immobilières sur mobile

Location Appartement Bihorel 2 pièces 46 m2 Seine maritime (76420) - 605 € / mois

location appartement 2 pièces 46 m² région Seine maritime

605 €/mois


Location Appartement 2 pièces BIHOREL 76420
Annonce Location 2 pièces Appartement Bihorel 76

Description

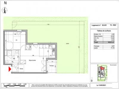
BIHOREL - Dans la résidence LES BIORELLES, nous vous proposons un appartement T2 d'une superficie de 46m² situé au rez-de-chaussée, comprenant : Une entrée avec placard, un séjour d'environ 22m² avec coin cuisine aménagé/équipé (évier, hotte, plaque de cuisson), une terrasse de 3m² donnant sur un jardin de 71m², une chambre, une salle d'eau avec WC. Au sous-sol, un parking n°11. Eau chaude et chauffage individuel gaz. Entretien parties communes, entretien ascenseur et espaces verts communs, compris dans les provisions sur charges mensuelles et donnant lieu à une régularisation annuelle. Les honoraires de location TTC (à la charge du locataire) incluent le montant de rédaction des états des lieux facturé pour 139 euros TTC, après réalisation lors de l'entrée dans les lieux. Disponible le 25/11/2025. Pour plus de détails sur ce logement, vous pouvez consulter la fiche descriptive de ce bien, sur votre site internet AFEDIM Les informations sur les risques auxquels ce bien est exposé sont disponibles sur le site Géorisques :
Retour
Autres photos
Plan
Favoris

Contacter l'agence

CM-CIC GESTION IMMOBILIERE
2 Rond Point des Antons CS70304
44703 ORVAULT

Toutes les annonces immobilières de CM-CIC GESTION IMMOBILIERE
08.09.10.28.80 ou 08.10.00.69.36


Recevoir des annonces similaires

Location à proximité de Bihorel