recherche immobilières sur mobile

Location Appartement Havre 1 pièce 39 m2 Seine maritime (76600) - 486 € / mois

location appartement 39 m² région Seine maritime

486 €/mois


Location Appartement HAVRE 76600
Annonce Location Appartement Havre 76
Louer Appartement 39 m2 Havre
Louer Appartement Havre Seine maritime

Description

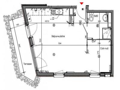
FRAIS D AGENCE OFFERT Quartier Eure - Brindeau : Dans un immeuble récent Appartement T1 bis de 39 m² situé au rez-de-chaussée d'une copropriété sécurisée et verdoyante. Le logement comprend une entrée, un grand séjour avec une cuisine, une salle de douche, un coin nuit. Grandes baies vitrées au sud, logement lumineux. Une place de stationnement comprise avec le logement. Le chauffage est au gaz individuel, visiophone, double vitrage PVC avec volets. Les provisions sur charges comprennent l'entretien des parties communes et des espaces vert, elles sont régulées une fois par an.
Retour
Autres photos
Plan
Favoris

Contacter l'agence

votre agent immobilier PFN - GOUILLET (LE HAVRE 76051)
PFN - GOUILLET
111 Av. Foch BP 122
76051 LE HAVRE

Toutes les annonces immobilières de PFN - GOUILLET
02.35.22.17.52 ou 02.32.74.60.94


Recevoir des annonces similaires

Location à proximité de Havre