recherche immobilières sur mobile

Appartement à vendre Monteux 4 pièces 55 m2 Vaucluse (84170) - 197000 €

vente appartement 4 pièces 55 m² 3 chambres région Vaucluse

197 000 €


Vente Appartement 4 pièces MONTEUX 84170
Annonce Vente 4 pièces Appartement Monteux 84
Acheter Appartement 55 m2 Monteux
Acheter Appartement Monteux Vaucluse
Acheter Appartement Monteux 197000 euros

Description

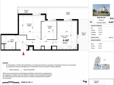
FRAIS DE NOTAIRE OFFERT: OPPORTUNITÉ vous est proposée par Pascal et sylvie BECOURT : Vaucluse 84170 MONTEUX - 197 000 Euros (Frais de notaire inclus)- Dernières normes énergétique. Vue dégagée . Appartement disponible immédiatement. Magnifique trois pièces de presque 56m² au 4ème étage avec ascenseur, salon séjour cuisine aménagée de 27 m², deux chambres, et une terrasse de 4,45m2 et un balcon de 13,60 m². Gros plus sur cette offre, 1 parking et les frais de notaires inclus. Idéalement situé au coeur de la Provence, entre Avignon et Orange et à 10 minutes de l'autoroute, découvrez le nouvel écoquartier Beaulieu ; avec son parc paysager de 38 hectares, son magnifique lac, sa plage et ses animations. Bientôt restaurant Mc Donald, supermarché, salle de sport. Véritable pôle d'attractivité et de tourisme : l'association unique d'une offre de shopping et de services et deux grands parcs de loisirs, Spirou et Wave Island. Située au bord du lac, dans un écrin de verdure, la résidence met l'accent sur la luminosité, le confort, le bien-être et se vit comme une invitation à la détente. VISITE 360° DISPONIBLE Optimisation de l'espace, distribution fonctionnelle, isolation thermique et phonique renforcée, chauffage Climatisation, Eau chaude thermodynamique, cuisine aménagée, volets roulants électriques, wc suspendus, carrelage grès cérame 60x60 cm. Nombre de lots à la vente : 2 (1 appartement et 1 parkings). Charges courantes annuelles "prévisionnelles" de 1000 Euros. Procédures diligentées contre le syndicat de copropriété : NON. 197 000 euros frais de notaire inclus (honoraires à la charge du vendeur) Pour visiter et vous accompagner dans votre projet contactez Pascal BECOURT 7/7 sur Carpentras au 0607. 98.09.36 ou par courriel à Cette présente annonce a été rédigée sous la responsabilité éditoriale de Pascal BECOURT agissant sous le statut d'agent commercial immatriculé au RSAC d'Avignon sous le numéro 397 592 8
Retour
Autres photos
Plan
Favoris

Contacter l'agence

votre agent immobilier Agence PROPRIETES PRIVEES FNAIM (BASSE-GOULAINE 44115)
Agence PROPRIETES PRIVEES FNAIM
15 RUE DE L'ATLANTIQUE
44115 BASSE-GOULAINE
Nous parlons :

Toutes les annonces immobilières de Agence PROPRIETES PRIVEES FNAIM
06.07.98.09.36 ou 08.05.13.00.17


Recevoir des annonces similaires

Vente à proximité de Monteux