recherche immobilières sur mobile

Location Appartement Mulhouse 3 pièces 62 m2 Haut rhin (68100) - 804 € / mois

location appartement 3 pièces 62 m² 2 chambres région Haut rhin

804 €/mois


Location Appartement 3 pièces MULHOUSE 68100
Annonce Location 3 pièces Appartement Mulhouse 68

Description

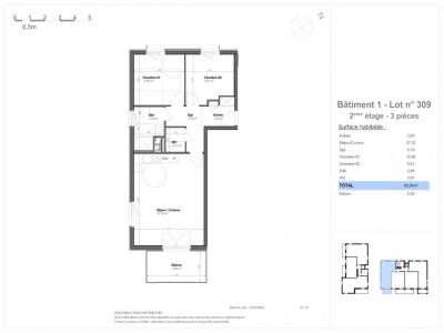
MULHOUSE, dans la résidence neuve AUDACE, nous vous proposons un appartement T3 (n°309), d'une superficie de 63.17 m² situé au 2ème étage avec ascenseur. Il se compose d'une entrée, d'un dégagement, d'un séjour-cuisine de 27.32 m² donnant sur un balcon de 8.00 m², d'une chambre de 10.85 m², d'une deuxième chambre de 9.41 m², et d'une salle d'eau avec WC séparé. Emplacement parking n°534. Chauffage, eau chaude, eau froide, ascenseur, espaces verts communs et entretien parties communes, compris dans les provisions sur charges mensuelles et donnant lieu à une régularisation annuelle. Les honoraires de location sont de 504 euros TTC (à la charge du locataire) et le montant de rédaction des états des lieux facturé 188 euros TTC, après réalisation lors de l'entrée dans les lieux. Plus de détails sur ce logement sur notre site internet Afedim Les informations sur les risques auxquels ce bien est exposé sont disponibles sur le site Géorisques :
Retour
Autres photos
Plan
Favoris

Contacter l'agence

CM-CIC GESTION IMMOBILIERE
2 Rond Point des Antons CS70304
44703 ORVAULT

Toutes les annonces immobilières de CM-CIC GESTION IMMOBILIERE
08.09.10.28.80 ou 08.10.00.69.36


Recevoir des annonces similaires

Location à proximité de Mulhouse