recherche immobilières sur mobile

Location Appartement Saint-herblain 1 pièce 29 m2 Loire atlantique (44800) - 465 € / mois

location appartement 29 m² région Loire atlantique

465 €/mois


Location Appartement SAINT-HERBLAIN 44800
Annonce Location Appartement Saint-herblain 44
Louer Appartement 29 m2 Saint-herblain
Louer Appartement Saint-herblain Loire atlantique
Louer Appartement Saint-herblain 465 euros

Description

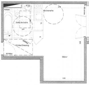
SAINT HERBLAIN - QUARTIER BEAUSEJOUR, dans résidence récente BBC, à proximité du TRAM L3, arrêt Beauséjour, venez découvrir ce studio de 29.62 m² repeint en 2026 et comprenant une entrée avec placard, une pièce de vie de 19.41 m² avec un coin cuisine, une salle de bain avec wc. CONDITIONS RESSOURCES : SCELLIER INTERMEDIAIRE. Logement soumis à la Garantie des Loyers Impayés (GLI). Les informations sur les risques auxquels ce bien est exposé sont disponibles sur le site Géorisques :
Retour
Autres photos
Plan
Favoris

Contacter l'agence

votre agent immobilier CABINET THIERRY (NANTES 44000)
CABINET THIERRY
du Couedic
44000 NANTES
Nous parlons :

Toutes les annonces immobilières de CABINET THIERRY
02.40.47.94.43


Recevoir des annonces similaires

Location à proximité de Saint-herblain