recherche immobilières sur mobile

Location Appartement Cholet 3 pièces 64 m2 Maine et loire (49300) - 700 € / mois

location appartement 3 pièces 64 m² 2 chambres région Maine et loire

700 €/mois


Location Appartement 3 pièces CHOLET 49300
Annonce Location 3 pièces Appartement Cholet 49

Description

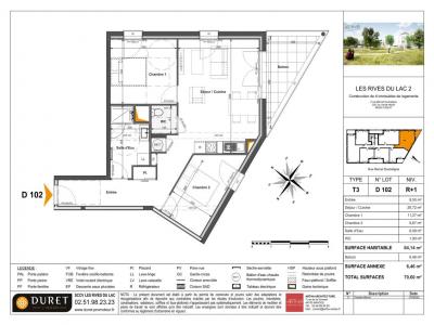
A CHOLET - Nous vous proposons dans la résidence neuve LES RIVES DU LAC, un appartement T3 n°D102 de 64.14m². Situé au 1er étage du bâtiment D, il comprend une entrée avec placard, un séjour cuisine de 26.72m² donnant sur un balcon de 6.46m², deux chambres, une salle d'eau et un WC séparé. Chauffage individuel électrique et eau chaude individuel ballon thermodynamique. Au RDC, un parking couvert n°34. Entretien parties communes, ascenseur et espaces verts communs, compris dans les provisions sur charges mensuelles et donnant lieu à une régularisation annuelle. Les honoraires de location de 705 euros TTC (à la charge du locataire) incluent le montant de rédaction des états des lieux facturé pour 192 euros TTC, après réalisation lors de l'entrée dans les lieux. Plus de détails sur notre site AFEDIM. Logement neuf en cours de construction - DPE à venir. Disponibilité mars 2026. Les informations sur les risques auxquels ce bien est exposé sont disponibles sur le site Géorisques :
Retour
Autres photos
Plan
Favoris

Contacter l'agence

CM - CIC GESTION IMMOBILIERE
2 rond point des AntonsBP70904
44703 ORVAULT

Toutes les annonces immobilières de CM - CIC GESTION IMMOBILIERE
08.09.10.28.80


Recevoir des annonces similaires

Location à proximité de Cholet