recherche immobilières sur mobile

Location Appartement Reze 3 pièces 62 m2 Loire atlantique (44400) - 758 € / mois

location appartement 3 pièces 62 m² 2 chambres région Loire atlantique

758 €/mois


Location Appartement 3 pièces REZE 44400
Annonce Location 3 pièces Appartement Reze 44
Louer Appartement 62 m2 Reze

Description

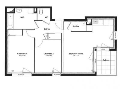
REZE, ECO QUARTIER DE LA JAGUERE, dans une résidence BBC, un appartement type 3 comprenant : Une entrée avec placard, un séjour donnant sur un balcon de 5.05m², une cuisine ouverte aménagée et équipée (four, plaque, hotte), un cellier, 2 chambres dont une avec placard, une salle de bains, wc. Parking Couvert. et Parking Extérieur Conditions de Ressources : LOI PINEL Les informations sur les risques auxquels ce bien est exposé sont disponibles sur le site Géorisques:
Retour
Autres photos
Plan
Favoris

Contacter l'agence

votre agent immobilier CABINET THIERRY (NANTES 44000)
CABINET THIERRY
du Couedic
44000 NANTES
Nous parlons :

Toutes les annonces immobilières de CABINET THIERRY
02.40.47.99.99 ou 02.40.47.94.43


Recevoir des annonces similaires

Location à proximité de Reze