recherche immobilières sur mobile

Location Appartement Saint-louis 2 pièces 50 m2 Haut rhin (68300) - 680 € / mois

location appartement 2 pièces 50 m² région Haut rhin

680 €/mois


Location Appartement 2 pièces SAINT-LOUIS 68300

Description

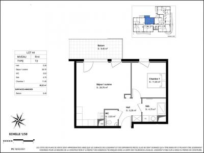
A ST LOUIS, dans la résidence neuve "REGALIA", nous vous proposons ce T2 de 50.22m². Le logement se compose d'un hall avec placard, de WC séparés, d'une salle d'eau et d'une chambre ainsi que d'un séjour/cuisine donnant sur le balcon. Un garage complète le lot. Chauffage et eau chaude individuel gaz. Entretien parties communes, entretien ascenseur et espaces verts communs, compris dans les provisions sur charges mensuelles et donnant lieu à une régularisation annuelle. Les honoraires de location TTC (à la charge du locataire) incluent le montant de rédaction des états des lieux facturé pour 150 euros TTC, après réalisation lors de l'entrée dans les lieux. Disponible le 04/03/2026. Pour plus de détails sur ce logement, vous pouvez consulter la fiche descriptive de ce bien, sur votre site internet AFEDIM Les informations sur les risques auxquels ce bien est exposé sont disponibles sur le site Géorisques :
Retour
Autres photos
Plan
Favoris

Contacter l'agence

CM-CIC GESTION IMMOBILIERE
2 Rond Point des Antons CS70304
44703 ORVAULT

Toutes les annonces immobilières de CM-CIC GESTION IMMOBILIERE
08.09.10.28.80 ou 08.10.00.69.36


Recevoir des annonces similaires

Location à proximité de Saint-louis