recherche immobilières sur mobile

Location Appartement Chapelle-sur-erdre 3 pièces 62 m2 Loire atlantique (44240) - 800 € / mois

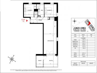
location appartement 3 pièces 62 m² 2 chambres région Loire atlantique

800 €/mois


Location Appartement 3 pièces CHAPELLE-SUR-ERDRE 44240

Description

A LA CHAPELLE SUR ERDRE, dans la résidence "LES JARDINS D'ERZH", nous vous proposons ce T3 de 62.7m². Il se compose d'une entrée, de deux chambre dont une avec placard, d'une salle d'eau, de WC indépendants ainsi que d'un séjour/cuisine donnant sur le balcon. Deux places de parking complètent le logement. Chauffage et eau chaude individuel gaz. Entretien parties communes, entretien ascenseur, compris dans les provisions sur charges mensuelles et donnant lieu à une régularisation annuelle. Les honoraires de location TTC (à la charge du locataire) incluent le montant de rédaction des états des lieux facturé pour 188 euros TTC, après réalisation lors de l'entrée dans les lieux. Plus de détails sur notre site AFEDIM. Les informations sur les risques auxquels ce bien est exposé sont disponibles sur le site Géorisques :
Retour
Autres photos
Plan
Favoris

Contacter l'agence

CM-CIC GESTION IMMOBILIERE
2 Rond Point des Antons CS70304
44703 ORVAULT

Toutes les annonces immobilières de CM-CIC GESTION IMMOBILIERE
08.09.10.28.80 ou 08.10.00.69.36


Recevoir des annonces similaires

Location à proximité de Chapelle-sur-erdre