recherche immobilières sur mobile

Location Appartement Villefranche-sur-saone 3 pièces 60 m2 Rhone (69400) - 865 € / mois

location appartement 3 pièces 60 m² 2 chambres région Rhone

865 €/mois


Location Appartement 3 pièces VILLEFRANCHE-SUR-SAONE 69400
Annonce Location 3 pièces Appartement Villefranche-sur-saone 69

Description

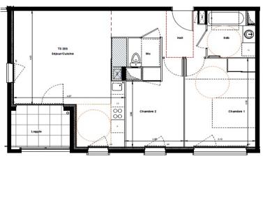
B203 VILLA SIENNA : T3 BAIGNE DE LUMIERE AU SEIN D'UNE RESIDENCE RECENTE DE STANDING A FAIBLE CONSOMMATION ENERGETIQUE. Il se compose d'une agréable pièce à vivre avec cuisine US semi-séparée équipée et meublée (plaques vitro, four, hotte, meubles hauts et bas) ouvrant sur un confortable extérieur. 2 chambres en sol parquet avec placard mural aménagé. Salle de bain avec meuble sous vasque et sèche-serviettes. CHAUFFAGE IND AU GAZ. VIDEOPHONE. PROCHE GARE SNCF ET CENTRE VILLE. Consommation d'énergie totale entre 280 EUR et 379 EUR par an (prix moyens des énergies indexés au 1er janvier 2021). Les informations sur les risques auxquels ce bien est exposé sont disponibles sur le site Géorisques : www. georisques. gouv. fr
Retour
Autres photos
Plan
Favoris

Contacter l'agence

CONFIANCE IMMOBILIER MONPLAISIR LOCATION
108, avenue des frères Lumière
69008 LYON

Toutes les annonces immobilières de CONFIANCE IMMOBILIER MONPLAISIR LOCATION
04.72.78.89.87


Recevoir des annonces similaires

Location à proximité de Villefranche-sur-saone