Location Appartement Alfortville 1 pièce 33 m2 Val de Marne (94140) - 745 € / mois
location appartement 33 m² région Val de marne
745 €/mois
Description
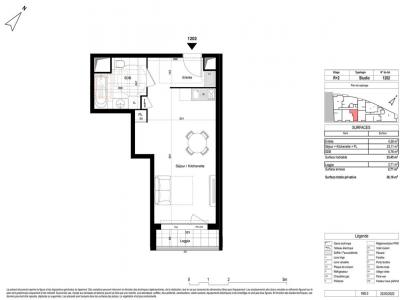
A ALFORTVILLE, dans la résidence neuve HORIZON SEINE, nous vous proposons ce T1 de 33.45m² situé au deuxième étage avec ascenseur. Il se compose d'une entrée, d'une pièce de vie équipée d'une kitchenette avec un accès à une loggia ainsi qu'une salle d'eau avec WC. Une place de parking complète le lot. Chauffage et eau chaude individuel gaz. Entretien parties communes, entretien ascenseur, compris dans les provisions sur charges mensuelles et donnant lieu à une régularisation annuelle. Les honoraires de location TTC (à la charge du locataire) incluent le montant de rédaction des états des lieux facturé pour 100 euros TTC, après réalisation lors de l'entrée dans les lieux. Disponibilité prévisionnelle octobre 2025 Plus de détails sur notre site AFEDIM.
Les informations sur les risques auxquels ce bien est exposé sont disponibles sur le site Géorisques :
Annonce Pro
Surface33 m2
Pièce1
SDB1
Séjour23 m2
DPEC
GESC
Référence18932969 - 0071713
Publiée le04/02/2026
BarèmeVoir le barème des honoraires
Retour
Autres photos
Plan
Favoris
Contacter l'agence
CM-CIC GESTION IMMOBILIERE 2 Rond Point des Antons CS70304 44703 ORVAULT
X FermerUtilisation des cookies En poursuivant votre navigation vous acceptez l'utilisation des cookies ou technologies similaires pour disposer de services et d'offres adaptés à vos centres d'intérêts Pour plus d'informations, gérer ou modifier les paramètres, cliquez ici