location appartement 2 pièces 44 m² région Ardennes
410 €/mois
Description
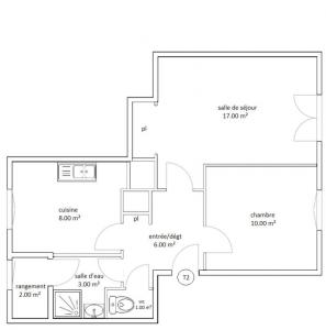
À louer - Appartement T2 de 44 m² situé au 2eme étage à Machault (08310)
Le logement se compose de :
o une entrée avec placard
o une cuisine indépendante
o un séjour lumineux
o une chambre fermée
o une salle de douche
o WC séparés
Une cave complète ce bien
Chauffage : collectif au gaz (compris dans les charges)
Disponibilité : libre le 15 Mars 2026
Annonce Pro
Surface44 m2
Pièces2
Chambre1
DPED
GESD
Référence18933198 - 026002-01-01-0014
Publiée le07/02/2026
Retour
Autres photos
Plan
Favoris
Contacter l'agence
HABITAT 08 22-24 avenue des martyrs de la Résistance 08000 CHARLEVILLE-MEZIERES
X FermerUtilisation des cookies En poursuivant votre navigation vous acceptez l'utilisation des cookies ou technologies similaires pour disposer de services et d'offres adaptés à vos centres d'intérêts Pour plus d'informations, gérer ou modifier les paramètres, cliquez ici