recherche immobilières sur mobile

Location Appartement Brumath 2 pièces 45 m2 Bas rhin (67170) - 605 € / mois

location appartement 2 pièces 45 m² région Bas rhin

605 €/mois


Location Appartement 2 pièces BRUMATH 67170
Annonce Location 2 pièces Appartement Brumath 67

Description

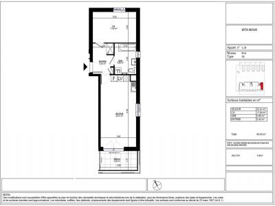
BRUMATH, dans la résidence VITA NOVA, vous est proposé un bel appartement T2 n°C21 de 45.63m² au 2ème étage comprenant une entrée de 5.42m², une pièce de vie de 22.41m² avec un espace cuisine aménagée et donnant accès au balcon de 6.36m², une chambre de 11.84m², une salle de bain avec WC de 5.96m². Jouissance exclusive d'un garage au sous-sol n°G24. Eau froide et eau chaude individuelles. Chauffage, entretien parties communes, entretien ascenseur et espaces verts communs, compris dans les provisions sur charges mensuelles et donnant lieu à une régularisation annuelle. Les honoraires de location TTC (à la charge du locataire) incluent le montant de rédaction des états des lieux facturé pour 138euros TTC, après réalisation lors de l'entrée dans les lieux. Disponible le 22.02.2026. Pour plus de détails sur ce logement, vous pouvez consulter la fiche descriptive de ce bien, sur notre site internet AFEDIM. Les informations sur les risques auxquels ce bien est exposé sont disponibles sur le site Géorisques :
Retour
Autres photos
Plan
Favoris

Contacter l'agence

CM-CIC GESTION IMMOBILIERE
2 Rond Point des Antons CS70304
44703 ORVAULT

Toutes les annonces immobilières de CM-CIC GESTION IMMOBILIERE
08.09.10.28.80 ou 08.10.00.69.36


Recevoir des annonces similaires

Location à proximité de Brumath