recherche immobilières sur mobile

Location Appartement Selestat 2 pièces 43 m2 Bas rhin (67600) - 681 € / mois

location appartement 2 pièces 43 m² région Bas rhin

681 €/mois


Location Appartement 2 pièces SELESTAT 67600
Annonce Location 2 pièces Appartement Selestat 67

Description

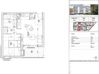
A SELESTAT, dans la résidence LE 1840, nous vous proposons un appartement T2, d'une superficie de 43,10 m² situé au 1er étage avec ascenseur. Il se compose d'une entrée, d'un dégagement, d'un séjour dont la cuisine équipée (plaque de cuisson-four et hotte)de 18,80 m² donnant sur un balcon de 6,4m², d'une salle d'eau avec WC, une chambre de 11,90 m² et d'un dégagement. Le logement est également équipé d'une place de parking extérieur. Eau chaude et chauffage (collectif). Entretien parties communes, entretien ascenseur et espaces verts communs, compris dans les provisions sur charges mensuelles et donnant lieu à une régularisation annuelle. Les honoraires de location TTC (à la charge du locataire) incluent le montant de rédaction des états des lieux facturé pour 129 euros TTC, après réalisation lors de l'entrée dans les lieux. Pour plus de détails sur ce logement, vous pouvez consulter la fiche descriptive de ce bien, sur votre site internet AFEDIM. Les informations sur les risques auxquels ce bien est exposé sont disponibles sur le site Géorisques :
Retour
Autres photos
Plan
Favoris

Contacter l'agence

CM-CIC GESTION IMMOBILIERE
2 Rond Point des Antons CS70304
44703 ORVAULT

Toutes les annonces immobilières de CM-CIC GESTION IMMOBILIERE
08.09.10.28.80 ou 08.10.00.69.36


Recevoir des annonces similaires

Location à proximité de Selestat