recherche immobilières sur mobile

Location Appartement Dijon 3 pièces 59 m2 Cote d'or (21000) - 796 € / mois

location appartement 3 pièces 59 m² 2 chambres région Cote d'or

796 €/mois


Location Appartement 3 pièces DIJON 21000
Annonce Location 3 pièces Appartement Dijon 21
Louer Appartement 59 m2 Dijon

Description

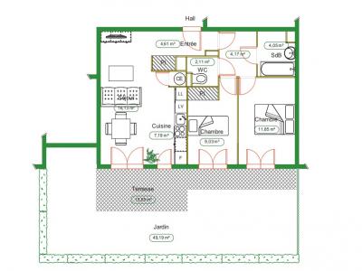
Im-Ô, à vos côtés pour votre bien Appartement de type 3 au 119 BIS avenue Victor Hugo à Dijon. Situé dans une charmante résidence construite en 2012 avec accès sécurisé par badge, situé au rez de chaussée, cet appartement de 59 m² se compose d'un salon avec une cuisine ouverte de 23 m², donnant sur une terrasse de 15 m² et un jardin privatif de 49 m². L'espace nuit comprend 2 chambres, une salle de bain et des WC.  Le logement est également équipé de plusieurs placards de rangement. Cet appartement dispose d'un chauffage individuel par pompe à chaleur. Les charges comprennent l'abonnement à l'eau froide ainsi qu'un contrat de maintenance multi-services. L'emplacement permet de profiter des commodités et un accès rapide au centre ville par les lignes de bus et au tram Divia à proximité. Il est également possible de louer un garage en supplément. Pour toute information complémentaire, merci de contacter Madame SOLANES Loane, ou Madame GUILLOUET Margaux.
Retour
Autres photos
Plan
Favoris

Contacter l'agence

votre agent immobilier ORVITIS (DIJON 21000)
ORVITIS
17 BOULEVARD VOLTAIRE
21000 DIJON

Toutes les annonces immobilières de ORVITIS
09.70.25.24.23 ou 08.10.02.10.00


Recevoir des annonces similaires

Location à proximité de Dijon