recherche immobilières sur mobile

Appartement à vendre JEAN JAURES 4 pièces 66 m2 Rhone (69007) - 277000 €

vente appartement 4 pièces 66 m² 3 chambres région Rhone secteur JEAN JAURES

277 000 €


Vente Appartement 4 pièces LYON-7EME-ARRONDISSEMENT 69007
Annonce Vente 4 pièces Appartement  69
Acheter Appartement 66 m2
Acheter Appartement  Rhone
Acheter Appartement  277000 euros

Description

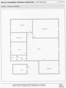
Fiche Id-REP179956 : Lyon, secteur Jean jaures, T4 d'environ 66 m2 comprenant 4 piece(s) dont 3 chambre(s) - Vue : Vue sur espace vert copro - Construction 1960 Beton - Equipements annexes : jardin - parking - digicode - double vitrage - cave - chauffage : Gaz Individuel - Classe-Energie E : 299 kWh.m2.an - Plus d'informations disponibles sur demande... - Mentions légales : Proposé à la vente à 277000 Euros (honoraires à la charge du vendeur) - DPE réalisé le : 01/11/2023 - Classe-Energie E : 299 kWh.m2.an - Bien en copropriété - Charges annuelles : 960 Euros/an (soit 80 Euros/mois) - Affaire suivie par Mr Didier VALENCY (Agent commercial independant) - Reseau Immo-Diffusion Chalon Sur Saone - Pour plus d'informations, contactez notre secrétariat au 09 74 53 13 81 (Appel gratuit ou prix d'une communication locale)
Retour
Autres photos
Plan
Favoris

Contacter l'agence

votre agent immobilier RESEAU IMMO-DIFFUSION (MONTPELLIER 34)
RESEAU IMMO-DIFFUSION
27 Place d'Aguesseau
34 MONTPELLIER
Nous parlons :

Toutes les annonces immobilières de RESEAU IMMO-DIFFUSION
09.74.53.13.81


Recevoir des annonces similaires

Vente à proximité de Lyon-7eme-arrondissement