recherche immobilières sur mobile

Location Appartement Alfortville 1 pièce 33 m2 Val de Marne (94140) - 745 € / mois

location appartement 33 m² région Val de marne

745 €/mois


Location Appartement ALFORTVILLE 94140
Annonce Location Appartement Alfortville 94
Louer Appartement 33 m2 Alfortville
Louer Appartement Alfortville Val de Marne

Description

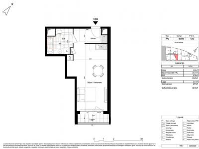
A ALFORTVILLE, dans la résidence neuve HORIZON SEINE, nous vous proposons ce T1 de 33.45m² situé au deuxième étage avec ascenseur. Il se compose d'une entrée, d'une pièce de vie équipée d'une kitchenette avec un accès à une loggia ainsi qu'une salle d'eau avec WC. Une place de parking complète le lot. Chauffage et eau chaude individuel gaz. Entretien parties communes, entretien ascenseur, compris dans les provisions sur charges mensuelles et donnant lieu à une régularisation annuelle. Les honoraires de location TTC (à la charge du locataire) incluent le montant de rédaction des états des lieux facturé pour 100 euros TTC, après réalisation lors de l'entrée dans les lieux. Disponibilité prévisionnelle octobre 2025 Plus de détails sur notre site AFEDIM. Les informations sur les risques auxquels ce bien est exposé sont disponibles sur le site Géorisques :
Retour
Autres photos
Plan
Favoris

Contacter l'agence

CM-CIC GESTION IMMOBILIERE
2 Rond Point des Antons CS70304
44703 ORVAULT

Toutes les annonces immobilières de CM-CIC GESTION IMMOBILIERE
08.09.10.28.80 ou 08.10.00.69.36


Recevoir des annonces similaires

Location à proximité de Alfortville