Appartement à vendre Saint-malo 1 pièce 26 m2 Ille et vilaine (35400) - 59500 €
vente appartement 26 m² région Ille et vilaine
59 500 €
Description
Spécial Investisseur - Forom® Immobilier
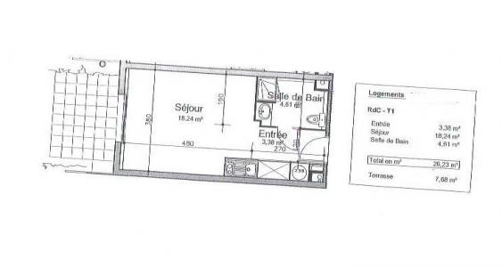
Appartement T1 d'environ 26 m² avec une rentabilité de 7,52% brute, 5,51% nette !
Le logement dispose d'un séjour, une kitchenette, une salle de bains avec un WC, un balcon et une place de parking.
Loyer entièrement garanti et sécurisé avec un bail commercial, aucune contrainte de gestion, faibles charges.
C'est le produit idéal pour se constituer facilement un patrimoine immobilier.
o Loyer annuel HT : 4 475E / an soit 372E / mois
o Rentabilité : 7,52% brute et 5,59% nette !
o Charges : 68,75E / mois
o Taxe foncière : 371E / an
o Gestionnaire : Cap West avec date de fin de bail le 14/05/2027
o Indexation selon l'indice ILC
o DPE : C
o Nombre de lots : 132
o Honoraires charge vendeur.
Les avantages
o Les loyers sont réglés que le logement soit occupé ou non (sans risque de vacances locatives ou d'impayés).
o Vous bénéficiez également d'avantages fiscaux lié au « LMNP amortissable », donnant une exonération d'impôt sur les revenus locatifs.
o Aucuns frais de gestion courante (le gestionnaire vous règle directement le loyer sans intermédiaire ni frais de gestion locative).
o Emplacement premium bien au-dessous du prix du marché.
La résidence
Située dans un quartier calme de Saint-Malo, cette résidence se trouve à seulement 2 km de la gare et proche des commodités. Bien desservie par les bus (lignes 2 et 7) avec un arrêt à 200 m, elle offre un accès facile au centre-ville et aux principaux axes routiers.
Informations clés :
- Montant des charges annuelles : 825E
- Taxe foncière 2025: 371E
- Diagnostic de Performance Énergétique : C
- Nombre de lots : 132
Annonce Pro
Surface26 m2
Pièce1
SDB1
DPEC
GESA
CopropriétéOui
Référence18940782 - 3950-FOROM
Publiée le07/02/2026
Modifiée le07/03/2026
BarèmeVoir le barème des honoraires
Retour
Autres photos
Plan
Favoris
Contacter l'agence
BONNEFOY IMMOBILIER 26 R Du Faubourg Bonnefoy 31000 TOULOUSE
X FermerUtilisation des cookies En poursuivant votre navigation vous acceptez l'utilisation des cookies ou technologies similaires pour disposer de services et d'offres adaptés à vos centres d'intérêts Pour plus d'informations, gérer ou modifier les paramètres, cliquez ici