recherche immobilières sur mobile

Appartement à vendre Toulouse 1 pièce 22 m2 Haute garonne (31400) - 60500 €

vente appartement 22 m² région Haute garonne

60 500 €


Vente Appartement TOULOUSE 31400
Annonce Vente Appartement Toulouse 31
Acheter Appartement 22 m2 Toulouse
Acheter Appartement Toulouse Haute garonne
Acheter Appartement Toulouse 60500 euros

Description

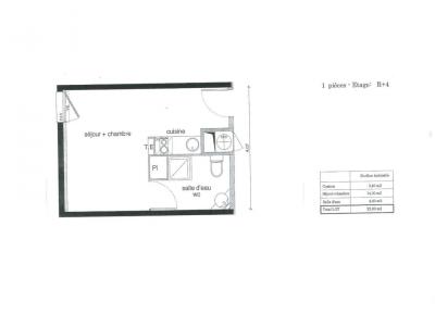
Spécial Investisseur - Forom® Immobilier Appartement T1 au 4ème étage d'environ 22 m² avec une rentabilité de 5,36% brute et 4,19% nette. Le logement dispose d'un séjour-chambre, une kitchenette, une salle d'eau avec un WC. Loyer entièrement garanti et sécurisé avec un bail commercial, aucune contrainte de gestion, faibles charges. C'est le produit idéal pour se constituer facilement un patrimoine immobilier. o Loyer annuel HT : 3 245,48E / an soit 270,45E / mois o Rentabilité : 5,36% brute et 4,19% nette ! o Charges : 14,51E / mois o Taxe foncière : 498,5E / an o Gestionnaire : Lokora (4/5) avec date de fin de bail le 31/12/2038 o Indexation selon l'indice IRL o DPE : C o Nombre de lots : 188 Les avantages o Les loyers sont réglés que le logement soit occupé ou non (sans risque de vacances locatives ou d'impayés). o Vous bénéficiez également d'avantages fiscaux lié au « LMNP amortissable », donnant une exonération d'impôt sur les revenus locatifs. o Aucuns frais de gestion courante (le gestionnaire vous règle directement le loyer sans intermédiaire ni frais de gestion locative). o Emplacement premium bien au-dessous du prix du marché. La résidence Située dans le quartier dynamique de Montaudran, la résidence bénéficie d'un accès rapide au métro (ligne B, station Montaudran à 13 min à pied) et est proche des campus universitaires, notamment l'Université Paul Sabatier. Commerces et services sont facilement accessibles, offrant un cadre idéal pour les étudiants.
Retour
Autres photos
Plan
Favoris

Contacter l'agence

BONNEFOY IMMOBILIER
26 R Du Faubourg Bonnefoy
31000 TOULOUSE

Toutes les annonces immobilières de BONNEFOY IMMOBILIER
05.67.76.62.50


Recevoir des annonces similaires

Vente à proximité de Toulouse