recherche immobilières sur mobile

Location Appartement Chambery 2 pièces 45 m2 Savoie (73000) - 732 € / mois

location appartement 2 pièces 45 m² région Savoie

732 €/mois


Location Appartement 2 pièces CHAMBERY 73000

Description

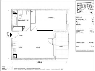
A CHAMBERY, dans la résidence neuve PARC PEROSA, nous vous proposons un appartement T2 n°C111 de 45m². Situé au 2e étage, il comprend un séjour cuisine de 24.63m², donnant sur un balcon de 6.89m², une chambre de 14.88m², et une salle de bain avec WC. Au 1er sous-sol, un emplacement de stationnement n°46. Chauffage et eau chaude collectifs urbain. Entretien parties communes et espaces verts communs, compris dans les provisions sur charges mensuelles et donnant lieu à une régularisation annuelle. Les honoraires de location de 585 euros TTC (à la charge du locataire) incluent le montant de rédaction des états des lieux facturé pour 135 euros TTC, après réalisation lors de l'entrée dans les lieux. Logement neuf en cours de construction - DPE à venir. Disponibilité Février 2026. Plus de détails sur notre site AFEDIM. Les informations sur les risques auxquels ce bien est exposé sont disponibles sur le site Géorisques :
Retour
Autres photos
Plan
Favoris

Contacter l'agence

CM-CIC GESTION IMMOBILIERE
2 Rond Point des Antons CS70304
44703 ORVAULT

Toutes les annonces immobilières de CM-CIC GESTION IMMOBILIERE
08.09.10.28.80 ou 08.10.00.69.36


Recevoir des annonces similaires

Location à proximité de Chambery