recherche immobilières sur mobile

Commerce à vendre Vesoul 68 m2 Haute saone (70000) - 55000 €

vente commerce 68 m² région Haute saone

55 000 €


Vente Commerce VESOUL 70000
Annonce Vente Commerce Vesoul 70

Description

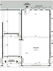
À saisir : Local commercial idéalement situé à Héricourt ! Opportunité Faubourg de Montbéliard à Héricourt, à seulement 25 minutes de Belfort et 10 minutes de Montbéliard ! Ce local commercial, disposant de 3 places de parking, d'une surface de 68 m² est en RDC d'un immeuble récent avec logements en étages et commerces en RDC. Entièrement brut, il peut être facilement aménagé selon vos besoins ou votre activité : sol, murs, plafond, vitrine... tout est possible ! Atouts majeurs : Localisation stratégique avec forte visibilité Accès direct PMR Réseaux en attente dans le local Places de parking AUCUN frais d'agence - AUCUN honoraires Que vous soyez commerçant, artisan, indépendant ou porteur d'un nouveau projet, ce local est l'endroit parfait pour vous implanter et développer votre activité dans un secteur résidentiel, dynamique et passant. Contactez-nous dès maintenant pour organiser une visite !
Retour
Autres photos
Plan
Favoris

Contacter l'agence

HABITAT 70
26 Rue Fleurier BP 70309
70006 VESOUL CEDEX

Toutes les annonces immobilières de HABITAT 70
03.84.96.13.70


Recevoir des annonces similaires

Vente à proximité de Vesoul