recherche immobilières sur mobile

Location Appartement Morangis 2 pièces 46 m2 Essonne (91420) - 937 € / mois

location appartement 2 pièces 46 m² région Essonne

937 €/mois


Location Appartement 2 pièces MORANGIS 91420

Description

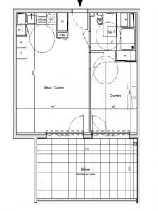
B14 L'INATTENDU : A VOIR ABS, MAGNIFIQUE TERRASSE DE 20M2 POUR CE SUPERBE T2 SANS VIS A VIS DONNANT ENTIERMENT SUR LEURINTERIEUR DEURUNE RESIDENCE NEUVE BBC DE STANDING. Superbe séjour et cuisine US équipée et aménagée (meubles haut et bas, hotte, plaques vitro, four) de 28m2, une belle chambre en sol parquet avec placard aménagé, SDE avec meuble sous vasque et sèche serviette. Deux places de parking privatives. Chauffage gaz individuel. Accès à la résidence sécurisé par visiophone. Consommation d'énergie totale entre 295 EUR et 399 EUR par an (prix moyens des énergies indexés au 1er janvier 2021). Les informations sur les risques auxquels ce bien est exposé sont disponibles sur le site Géorisques : www. georisques. gouv. fr
Retour
Autres photos
Plan
Favoris

Contacter l'agence

CONFIANCE IMMOBILIER MONPLAISIR LOCATION
108, avenue des frères Lumière
69008 LYON

Toutes les annonces immobilières de CONFIANCE IMMOBILIER MONPLAISIR LOCATION
04.72.78.89.87


Recevoir des annonces similaires

Location à proximité de Morangis