recherche immobilières sur mobile

Location Appartement Erquinghem-lys 2 pièces 47 m2 Nord (59193) - 698 € / mois

location appartement 2 pièces 47 m² région Nord

698 €/mois


Location Appartement 2 pièces ERQUINGHEM-LYS 59193

Description

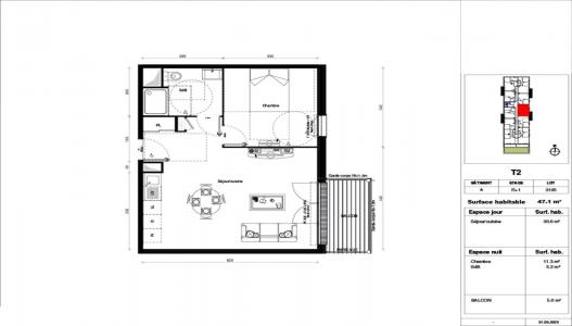
A Erquinghem-Lys, nous vous proposons dans la résidence neuve PAVILLON MUSICAL , un appartement de type T2 n°A105 de 47.10m². Situé au 1er étage avec ascenseur, il se compose d'une entrée avec placard, une salle de bain avec un WC, une chambre de 12.30m², un séjour avec cuisine de 30.60m² donnant sur un balcon de 5m². En extérieur, une place de parking n°20. Chauffage individuel électrique. Eau froide, eau chaude, entretien parties communes, entretien ascenseur et espaces verts communs, compris dans les provisions sur charges mensuelles et donnant lieu à une régularisation annuelle. Les honoraires de location TTC (à la charge du locataire) incluent le montant de rédaction des états des lieux facturé pour 142 euros TTC, après réalisation lors de l'entrée dans les lieux. Logement neuf, DPE à venir. Disponibilité mi-mars 2026. Pour plus d'informations, consultez notre site internet AFEDIM. Les informations sur les risques auxquels ce bien est exposé sont disponibles sur le site Géorisques :
Retour
Autres photos
Plan
Favoris

Contacter l'agence

CM-CIC GESTION IMMOBILIERE
2 Rond Point des Antons CS70304
44703 ORVAULT

Toutes les annonces immobilières de CM-CIC GESTION IMMOBILIERE
08.09.10.28.80 ou 08.10.00.69.36


Recevoir des annonces similaires

Location à proximité de Erquinghem-lys