recherche immobilières sur mobile

Location Appartement Courdimanche 2 pièces 40 m2 Val d'Oise (95800) - 813 € / mois

location appartement 2 pièces 40 m² région Val d'oise

813 €/mois


Location Appartement 2 pièces COURDIMANCHE 95800
Annonce Location 2 pièces Appartement Courdimanche 95

Description

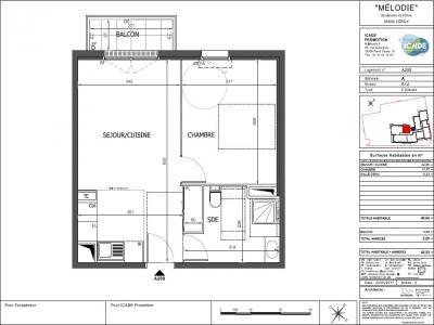
A Cergy, dans la résidence MELODIE, nous vous proposons un appartement de type 2 (n°209) de 40.64m² sis au 2ème étage comprenant une pièce de vie avec un coin cuisine de 22m² donnant sur un balcon de 2.69m², une salle d'eau et une chambre. Chauffage collectif, eau chaude collective gaz. Entretien parties communes, entretien ascenseur et espaces verts communs, compris dans les provisions sur charges mensuelles et donnant lieu à une régularisation annuelle. Les honoraires de location TTC (à la charge du locataire) incluent le montant de rédaction des états des lieux facturé pour 121 euros TTC, après réalisation lors de l'entrée dans les lieux. Disponible le 21/08/2025. Pour plus de détails sur ce logement, vous pouvez consulter la fiche descriptive de ce bien, sur votre site internet AFEDIM. Les informations sur les risques auxquels ce bien est exposé sont disponibles sur le site Géorisques :
Retour
Autres photos
Plan
Favoris

Contacter l'agence

CM-CIC GESTION IMMOBILIERE
2 Rond Point des Antons CS70304
44703 ORVAULT

Toutes les annonces immobilières de CM-CIC GESTION IMMOBILIERE
08.09.10.28.80 ou 08.10.00.69.36


Recevoir des annonces similaires

Location à proximité de Courdimanche