recherche immobilières sur mobile

Location Appartement Lille 3 pièces 67 m2 Nord (59000) - 922 € / mois

location appartement 3 pièces 67 m² 2 chambres région Nord

922 €/mois


Location Appartement 3 pièces LILLE 59000
Annonce Location 3 pièces Appartement Lille 59
Louer Appartement 67 m2 Lille

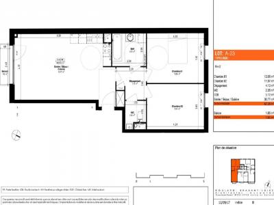
Description

A LILLE dans la résidence URBAN STREET. Nous vous proposons un appartement T3 d'une superficie de 67,38m² situé au 2ème étage, comprenant : Une entrée, un séjour d'environ 30m² avec coin cuisine aménagé et équipé (plaque de cuisson, hotte) donnant sur un balcon de 1,86m², deux chambre, une salle de bain, un WC séparé et un dégagement. Un parking n°6. Eau chaude et chauffage (individuel). Entretien parties communes, entretien ascenseur et espaces verts communs, compris dans les provisions sur charges mensuelles et donnant lieu à une régularisation annuelle. Les honoraires de location TTC (à la charge du locataire) incluent le montant de rédaction des états des lieux facturé pour 202euros TTC, après réalisation lors de l'entrée dans les lieux. Disponible le 15/10/2025. Pour plus de détails sur ce logement, vous pouvez consulter la fiche descriptive de ce bien, sur votre site internet AFEDIM. Les informations sur les risques auxquels ce bien est exposé sont disponibles sur le site Géorisques :
Retour
Autres photos
Plan
Favoris

Contacter l'agence

CM-CIC GESTION IMMOBILIERE
2 Rond Point des Antons CS70304
44703 ORVAULT

Toutes les annonces immobilières de CM-CIC GESTION IMMOBILIERE
08.09.10.28.80 ou 08.10.00.69.36


Recevoir des annonces similaires

Location à proximité de Lille