recherche immobilières sur mobile

Location Appartement Neuville-sur-saone 2 pièces 43 m2 Rhone (69250) - 742 € / mois

location appartement 2 pièces 43 m² région Rhone

742 €/mois


Location Appartement 2 pièces NEUVILLE-SUR-SAONE 69250

Description

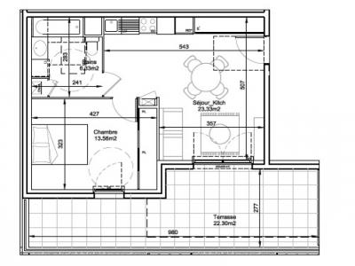
A001 LES TERRASSES DE JULIE :BENEFICIEZ D'UNE MAGNIFIQUE TERRASSE AU CALME DE 22M² POUR CE BEAU T2 EN REZ DE CHAUSSE DE PLUS DE 43M² - DONNANT SUR L'INTERIEUR D'UNE RESIDENCE RECENTE BBC DE STANDING LEURappartement se compose d'un beau séjour de 23m² avec cuisine ouverte équipée et meublée (hotte, plaques vitro, four, meubles haut et bas), une superbe grande chambre de près de 14m² avec grand placard mural et sol parquet, une salle de bain aménagée avec meuble sous vasque et sèche serviettes. Garage simple fermé en sous-sol sécurisé. Vidéophone. Chauffage au gaz ind. A 10 MIN A PIED DE TOUS COMMERCES. Consommation d'énergie totale 482.19 EUR par an (prix moyens des énergies indexés au 15.8.2015). Les informations sur les risques auxquels ce bien est exposé sont disponibles sur le site Géorisques : www. georisques. gouv. fr
Retour
Autres photos
Plan
Favoris

Contacter l'agence

CONFIANCE IMMOBILIER MONPLAISIR LOCATION
108, avenue des frères Lumière
69008 LYON

Toutes les annonces immobilières de CONFIANCE IMMOBILIER MONPLAISIR LOCATION
04.72.78.89.87


Recevoir des annonces similaires

Location à proximité de Neuville-sur-saone