recherche immobilières sur mobile

Appartement à vendre Paris-13eme-arrondissement 1 pièce 19 m2 Paris (75013) - 180000 €

vente appartement 19 m² région Paris

180 000 €


Vente Appartement PARIS-13EME-ARRONDISSEMENT 75013
Annonce Vente Appartement Paris-13eme-arrondissement 75

Description

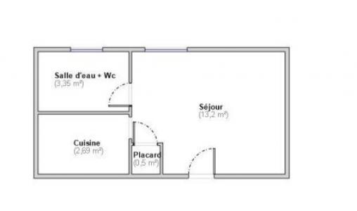
STUDIO - BOULEVARD VINCENT AURIOL Nous vous proposons à la vente un studio de 19,74 m², situé au premier étage avec ascenseur d'une copropriété calme et entretenue. Idéal pour un pied-à-terre ou un premier achat, ce logement donnant sur la cour intérieure offre un plan optimisé et se compose de la manière suivante : - une pièce principale avec rangements, - une cuisine équipée, - une salle d'eau, - WC sur le palier. Une cave complète ce bien. Chauffage individuel électrique et chauffe-eau par ballon. Les informations sur les risques auxquels ce bien est exposé sont disponibles sur le site Géorisques :
Retour
Autres photos
Plan
Favoris

Contacter l'agence

CABINET PERENIUM
33 avenue de l'Opéra
75002 PARIS

Toutes les annonces immobilières de CABINET PERENIUM
07.60.82.45.66 ou 01.55.38.05.35


Recevoir des annonces similaires

Vente à proximité de Paris-13eme-arrondissement