recherche immobilières sur mobile

Location Appartement Lambersart 3 pièces 63 m2 Nord (59130) - 915 € / mois

location appartement 3 pièces 63 m² région Nord

915 €/mois


Location Appartement 3 pièces LAMBERSART 59130
Annonce Location 3 pièces Appartement Lambersart 59

Description

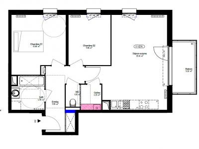
Dernière opportunité T3 neuf à Lambersart Venez découvrir ce bien de type 3 dans une résidence calme et sécurisée L'appartement se compose d'un séjour ouvert sur une cuisine, d'une salle de bains avec baignoire, WC séparé, un cellier , de deux chambres et un balcon. Il est situé au 1er étage sans ascenseur. Mode de chauffage : chaudière indiv GAZ Pour ce logement le loyer est de 915 E ( loyer, charges générales et une place de stationnement) Ce logement est un logement locatif intermédiaire soumis à plafond de ressources (plafond fixé par décret). Votre revenu fiscal de référence N-2 (que vous trouverez sur votre avis d'imposition 2024 sur vos revenus 2023) ne doit pas dépasser les plafonds ci-dessous : - 2 personnes : 43 056 E - 3 personnes ou une personne seule avec 1 personne à charge : 52 358 E Le dépôt de garantie demandé sera d'un mois de loyer hors charges. N'hésitez pas nous contacter, nous vous indiquerons les documents à nous transmettre pour étudier votre dossier. Référence du bien C12
Retour
Autres photos
Plan
Favoris

Contacter l'agence

SIA HABITAT
67, avenue des Potiers
59500 DOUAI

Toutes les annonces immobilières de SIA HABITAT
09.69.32.12.18 ou 03.20.22.10.33


Recevoir des annonces similaires

Location à proximité de Lambersart