recherche immobilières sur mobile

Location Appartement Saint-herblain 2 pièces 46 m2 Loire atlantique (44800) - 647 € / mois

location appartement 2 pièces 46 m² région Loire atlantique

647 €/mois


Location Appartement 2 pièces SAINT-HERBLAIN 44800

Description

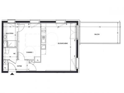
SAINT HERBLAIN, dans une résidence récente BBC, un appartement Type 2 comprenant Une entrée avec placard, un séjour donnant sur un balcon de 11.80m², une cuisine aménagée et équipée d'une hotte, d'un frigo et plaques vitrocéramique, une chambre avec placard avec une salle d'eau attenante, wc. Parking Couvert. Conditions de ressources LOI PINEL. Les informations sur les risques auxquels ce bien est exposé sont disponibles sur le site Géoriques : Les informations sur les risques auxquels ce bien est exposé sont disponibles sur le site Géorisques : www. georisques. gouv. fr
Retour
Autres photos
Plan
Favoris

Contacter l'agence

votre agent immobilier CABINET THIERRY (NANTES 44000)
CABINET THIERRY
du Couedic
44000 NANTES
Nous parlons :

Toutes les annonces immobilières de CABINET THIERRY
02.40.47.94.43


Recevoir des annonces similaires

Location à proximité de Saint-herblain