Maison à vendre Fillinges 6 pièces 140 m2 Haute savoie (74250) - 689700 €
vente maison 6 pièces 140 m² 4 chambres région Haute savoie
689 700 €
Description
Venez Découvrir votre maison neuve ARTIS sur la commune de Fillinges dans un lotissement viabilisé au calme, à 5 mins des axes autoroutes et des commodités. Plusieurs lots disponibles de 790 à 1300m².
Découvrez ce projet de construction d'une maison Artis ! Artis est constructeur de maisons individuelles depuis plus de 35 ans en Pays de Savoie et Pays de Gex, et vous accompagne à chaque étape de votre projet.
Choisir Artis pour votre maison, c'est bénéficier de toutes les garanties d'un Contrat de Construction de Maison Individuelle (CCMI) et d'un suivi rigoureux assuré par nos équipes tout au long de votre parcours de construction.
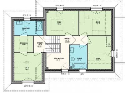
Le modèle HERMÈS 140 séduit par son architecture soignée et ses volumes pensés pour le confort de toute la famille. Son agencement propose une belle harmonie entre fonctionnalité et convivialité, avec une pièce de vie agréable et lumineuse, conçue pour s'adapter à votre quotidien.
L'espace nuit offre une organisation pratique et bien séparée, idéale pour préserver l'intimité de chacun, avec des chambres confortables et une salle de bains.
Selon votre projet et vos besoins, des aménagements et variantes peuvent être envisagés pour personnaliser la maison et optimiser les espaces.
Contactez-nous pour en savoir plus et étudier votre projet !
Prix maison : 689 700E comprenant terrain + frais de notaire + budget VRD +estimatif taxes+ projet maison hors lots peinture et parquet
REF ANNONCE : MGA-COR-FILLINGES
Annonce Pro
Surface140 m2
Pièces6
Chambres4
SDB1
Séjour45 m2
Terrain790 m2
Référence18962525 - MGA-COR-FILLINGES
Publiée le23/02/2026
Modifiée le18/03/2026
Retour
Autres photos
Plan
Favoris
Contacter l'agence
GROUPE ARTIS L'Artémis - Route de La Bouvarde 74370 METZ-TESSY
X FermerUtilisation des cookies En poursuivant votre navigation vous acceptez l'utilisation des cookies ou technologies similaires pour disposer de services et d'offres adaptés à vos centres d'intérêts Pour plus d'informations, gérer ou modifier les paramètres, cliquez ici