recherche immobilières sur mobile

Location Appartement Saint-genis-pouilly 2 pièces 39 m2 Ain (01630) - 877 € / mois

location appartement 2 pièces 39 m² région Ain

877 €/mois


Location Appartement 2 pièces SAINT-GENIS-POUILLY 01630
Annonce Location 2 pièces Appartement Saint-genis-pouilly 01

Description

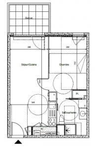
A203 LE MAXIME AU COEUR D'UNE RESIDENCE RECENTE (2021) DE STANDING A FAIBLE CONSOMMATION ENERGETIQUE, VENEZ DECOUVRIR CE JOLIE T2 DE 39 M² AVEC BALCON DONNANT SUR INTERIEUR DE RESIDENCE. Il comprend un séjour ouvert sur cuisine équipée (meubles hauts et bas, hotte, plaque de cuisson et four), Une belle chambre de 12m², une salle de bain avec douche : meuble sous vasque et sèche serviette. Garage fermé en sous-sol sécurisé. Chauffage gaz individuel. Visiophone. Les informations sur les risques auxquels ce bien est exposé sont disponibles sur le site Géorisques : www. georisques. gouv. fr
Retour
Autres photos
Plan
Favoris

Contacter l'agence

CONFIANCE IMMOBILIER MONPLAISIR LOCATION
108, avenue des frères Lumière
69008 LYON

Toutes les annonces immobilières de CONFIANCE IMMOBILIER MONPLAISIR LOCATION
04.72.78.89.87


Recevoir des annonces similaires

Location à proximité de Saint-genis-pouilly