recherche immobilières sur mobile

Location Appartement Wattignies 3 pièces 62 m2 Nord (59139) - 873 € / mois

location appartement 3 pièces 62 m² 2 chambres région Nord

873 €/mois


Location Appartement 3 pièces WATTIGNIES 59139

Description

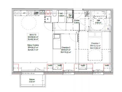
** Opportunité de type 3, Wattignies* Venez découvrir cet appartement de type 3 à proximité de toutes les commodités, Ce logement de 62m2 dispose d'un salon séjour, d'une salle de bain,, de deux chambres et d'un balcon. Il est situé 3 étage avec ascenseur. Une place de stationnement est comprise dans le prix du loyer/charge Mode de chauffage : Individuel Gaz Le prix comprend le loyer, les charges générales, et une provision d'eau froide. o Aucun frais d'agence ni honoraire o Dépôt de garantie : 1 mois de loyer hors charges Logement social conventionné : Ce logement est soumis à un plafond de ressources fixé par décret. Les revenus fiscaux de référence 2024 (sur revenus 2023) à ne pas dépasser pour prétendre à ce logement sont : o Pour 3 personnes : 32 764E o Pour 2 personnes : 43 756 E Important : o Ni les colocations étudiantes, ni les garants ne sont possibles pour ces locations. o Le dossier est soumis à un passage en commission d'attribution. REF : CLEMENCEAU B313
Retour
Autres photos
Plan
Favoris

Contacter l'agence

SIA HABITAT
67, avenue des Potiers
59500 DOUAI

Toutes les annonces immobilières de SIA HABITAT
09.69.32.12.18 ou 03.20.22.10.33


Recevoir des annonces similaires

Location à proximité de Wattignies