recherche immobilières sur mobile

Location Appartement Lens 3 pièces 63 m2 Pas de calais (62300) - 816 € / mois

location appartement 3 pièces 63 m² 2 chambres région Pas de calais

816 €/mois


Location Appartement 3 pièces LENS 62300

Description

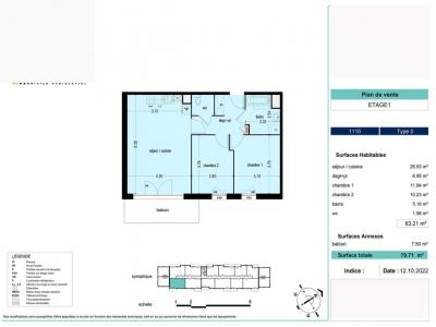
A LENS, à proximité de LILLE et ARRAS et à deux pas de l'hyper-centre, nous vous proposons dans la résidence LES HAUTS DE MONTGRE un appartement type 3 de 63.18 m² n°1110. Il se compose d'un séjour de 26.93 m² ouvert sur une cuisine meublée et équipée (plaque, hotte, évier)., de 2 chambres, une salle de bains avec WC séparé. Un balcon de 7.5 m² exposé SUD complète ce bien. Un emplacement de stationnement en extérieur n°121. Entretien parties communes, ascenseur et espaces verts, compris dans les provisions sur charges mensuelles et donnant lieu à une régularisation annuelle. Les honoraires de location TTC (à la charge du locataire) incluent le montant de rédaction des états des lieux facturé pour 505 euros TTC, après réalisation lors de l'entrée dans les lieux. Plus de détails sur notre site internet AFEDIM. Logement en cours de construction - DPE à venir Les informations sur les risques auxquels ce bien est exposé sont disponibles sur le site Géorisques :
Retour
Autres photos
Plan
Favoris

Contacter l'agence

CM - CIC GESTION IMMOBILIERE
2 rond point des AntonsBP70904
44703 ORVAULT

Toutes les annonces immobilières de CM - CIC GESTION IMMOBILIERE
08.09.10.28.80


Recevoir des annonces similaires

Location à proximité de Lens