recherche immobilières sur mobile

Location Appartement Louviers 1 pièce 22 m2 Eure (27400) - 520 € / mois

location appartement 22 m² région Eure

520 €/mois


Location Appartement LOUVIERS 27400
Annonce Location Appartement Louviers 27
Louer Appartement 22 m2 Louviers

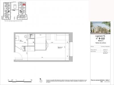
Description

A LOUVIERS, dans la résidence REVERSO LOUVIERS , située à proximité du cour historique de la ville et de toutes les commodités, nous vous proposons un appartement neuf Meublé T1 n°B-112 de 22.05m² situé au 1er étage avec ascenseur. Il comprend une pièce de vie de 18.65m² avec kitchenette équipée (plaques 2 feux + frigo + micro-ondes), une salle d'eau équipée et un WC. Cet appartement entièrement équipé (vaisselle, petit électroménager, ustensiles cuisine .) et meublé (canapé, lit, table, chaises, rangements .), dans un style naturel est prêt à vivre. Eau chaude, chauffage, entretien parties communes, ascenseur et espaces verts compris dans les provisions sur charges mensuelles et donnant lieu à une régularisation annuelle. Les honoraires de location TTC (à la charge du locataire) incluent le montant de rédaction des états des lieux facturé pour 66 euros TTC, après réalisation lors de l'entrée dans les lieux. Dépôt de garantie demandé : 2 mois de loyers hors charges soit 800 E TTC. Disponibilité prévisionnelle au 15/03/2026. Pour plus de détails sur ce logement, vous pouvez consulter la fiche descriptive de ce bien, sur notre site internet AFEDIM. DPE à venir - logement en cours de construction. Les informations sur les risques auxquels ce bien est exposé sont disponibles sur le site Géorisques :
Retour
Autres photos
Plan
Favoris

Contacter l'agence

CM - CIC GESTION IMMOBILIERE
2 rond point des AntonsBP70904
44703 ORVAULT

Toutes les annonces immobilières de CM - CIC GESTION IMMOBILIERE
08.09.10.28.80


Recevoir des annonces similaires

Location à proximité de Louviers