vente appartement 2 pièces 42 m² région Loire atlantique
72 000 €
Description
Spécial Investisseur - Exclusivité Forom® Immobilier
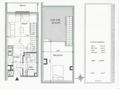
Appartement T2 en duplex au 2ème et 3ème étage d'environ 42,89 m² situé dans une résidence récente sur la commune de Sautron.
Le logement dispose d'un séjour, une cuisine, une salle d'eau avec WC, un balcon et une mezzanine avec un coin nuit.
Loyer entièrement garanti et sécurisé, aucune contrainte de gestion, faibles charges.
C'est le produit idéal pour se constituer facilement un patrimoine immobilier.
o Loyer annuel HT : 5 815,8E / an soit 484,65E / mois
o Rentabilité : 8,08% brute !
o Charges : 109E / mois
o Taxe foncière : 603E / an
o Gestionnaire : Cap West avec date de fin de bail le 01/10/2031
o DPE : D
o Nombre de lots : 82
o Honoraires charge vendeur
Les avantages
Les loyers sont réglés que le logement soit occupé ou non (sans risque de vacances locatives ou d'impayés). Vous bénéficiez également d'avantages fiscaux lié au « LMNP amortissable », donnant une exonération d'impôt sur les revenus locatifs. Vous aurez de faibles charges et aucuns soucis de gestion courante (le gestionnaire vous règle directement le loyer sans intermédiaire ni frais de gestion locative). Enfin, vous investissez dans un emplacement premium bien au-dessous du prix du marché.
La résidence
Résidence d'affaires récente gérée par Cap West, idéalement située à Sautron, aux portes de Nantes. Elle propose des appartements meublés avec kitchenette, balcon ou terrasse, parking privatif, ainsi que des services appréciés comme la salle de sport et la laverie.
Un bien parfaitement adapté à l'investissement locatif en LMNP, avec gestion déléguée, fiscalité avantageuse et forte demande de la part d'une clientèle professionnelle de passage.
Annonce Pro
Surface42 m2
Pièces2
Chambre1
DPED
GESC
CopropriétéOui
Référence18965253 - 3985-FOROM
Publiée le23/02/2026
Modifiée le10/04/2026
BarèmeVoir le barème des honoraires
Retour
Autres photos
Plan
Favoris
Contacter l'agence
BONNEFOY IMMOBILIER 26 R Du Faubourg Bonnefoy 31000 TOULOUSE
X FermerUtilisation des cookies En poursuivant votre navigation vous acceptez l'utilisation des cookies ou technologies similaires pour disposer de services et d'offres adaptés à vos centres d'intérêts Pour plus d'informations, gérer ou modifier les paramètres, cliquez ici