recherche immobilières sur mobile

Location Appartement Chenove 2 pièces 37 m2 Cote d'or (21300) - 570 € / mois

location appartement 2 pièces 37 m² région Cote d'or

570 €/mois


Location Appartement 2 pièces CHENOVE 21300

Description

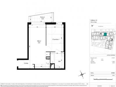
A CHENOVE - Dans la résidence neuve CAP'CANAL, nous vous proposons un appartement T2 N°A32 de 37.43m² situé au 3ème étage. Il se compose d'une entrée, un séjour de 18.92m² avec cuisine ouverte (hotte, four, plaques, réfrigérateur) et donnant sur un balcon de 4.68m² et d'une chambre de 11.42m² avec accès privatif à la salle de bain et aux WC. Cet appartement dispose d'une place de stationnement N°81. Chauffage et eau chaude électrique. Entretien parties communes, entretien ascenseur, compris dans les provisions sur charges mensuelles et donnant lieu à une régularisation annuelle. Les honoraires de location TTC (à la charge du locataire) incluent le montant de rédaction des états des lieux facturé pour 112 euros TTC, après réalisation lors de l'entrée dans les lieux. Disponibilité immédiate. Plus de détails sur notre site AFEDIM. Les informations sur les risques auxquels ce bien est exposé sont disponibles sur le site Géorisques :
Retour
Autres photos
Plan
Favoris

Contacter l'agence

CM-CIC GESTION IMMOBILIERE
2 Rond Point des Antons CS70304
44703 ORVAULT

Toutes les annonces immobilières de CM-CIC GESTION IMMOBILIERE
08.09.10.28.80 ou 08.10.00.69.36


Recevoir des annonces similaires

Location à proximité de Chenove