recherche immobilières sur mobile

Location Appartement Agde 2 pièces 39 m2 Herault (34300) - 631 € / mois

location appartement 2 pièces 39 m² région Herault

631 €/mois


Location Appartement 2 pièces AGDE 34300
Annonce Location 2 pièces Appartement Agde 34

Description

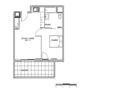
B203 LES TERRASSES DE SOLENE - SYMPATHIQUE T2 DONNANT ENTIEREMENT SUR L'INTERIEUR D'UNE RESIDENCE RECENTE BBC DE STANDING A PROXIMITE DES COMMERCES - TERRASSE DE 10M2 - 2EME ETAGE - Grand séjour et cuisine US équipée et aménagée (meubles hauts et bas + plaques, four et hotte) de 22.5m2, une chambre en sol parquet, SDB aménagée, place de parking privative double. Consommation d'énergie totale entre 250-390EUR par an (prix moyens des énergies indexés au 2021.2022.2023). Les informations sur les risques auxquels ce bien est exposé sont disponibles sur le site Géorisques : www. georisques. gouv. fr
Retour
Autres photos
Plan
Favoris

Contacter l'agence

CONFIANCE IMMOBILIER MONPLAISIR LOCATION
108, avenue des frères Lumière
69008 LYON

Toutes les annonces immobilières de CONFIANCE IMMOBILIER MONPLAISIR LOCATION
04.72.78.89.87


Recevoir des annonces similaires

Location à proximité de Agde