recherche immobilières sur mobile

Local commercial à vendre Milhaud 10 pièces 1600 m2 Gard (30540) - 2300 €

vente local commercial 10 pièces 1600 m² région Gard

2 300 €


Vente Local commercial MILHAUD 30540
Annonce Vente Local commercial Milhaud 30
Acheter Local commercial 1600 m2 Milhaud
Acheter Local commercial Milhaud Gard
Acheter Local commercial Milhaud 2300 euros

Description

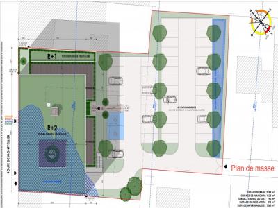
LOCAUX COMMERCIAUX - MAISON MÉDICALE - 1600 m2 A VENDRE A MILHAUD (GARD) Locaux commerciaux modulables d'environ 1 600 m2 sur R+2 divisibles, plateaux de 50 à 200 m² encore disponibles. Activités recherchées : Professions médicales UNIQUEMENT Ils ont déjà réservé leur locaux : -Médecins généralistes et spécialistes, -Infirmier, -Kinésithérapeute, -Dentiste, -Orthophoniste, -Podologue, -Sage-femme, -Cardiologue, -Pharmacie, -Laboratoire d'analyses. Pourquoi choisir la Maison Médicale de Milhaud ? -Un emplacement stratégique : Entre NÎMES et LUNEL, avec un accès rapide via l'autoroute A9. Un environnement agréable : -Terrasses végétalisées, -Espaces de détente, -Services inclus et mutualisés : -Entretien des locaux, -Ascenseurs, -Salles d'attentes communes, -Parkings privés : 44 places réservées. DPE : Non soumis Prix de vente : 2 300 E HT/le m2 HE/HA, réservation en attente, climatisation en attente. Honoraires agence : 6% HT du prix net vendeur charge Acquéreur Taxe foncière : 15E du m2 EV Immobilier Philippe GIRAUD +33(0)6 59 37 19 34 RSAC 412 566 887 Montpellier
Retour
Autres photos
Plan
Favoris

Contacter l'agence

RESEAU EV IMMOBILIER
29 Quai Arloing
69009 LYON

Toutes les annonces immobilières de RESEAU EV IMMOBILIER
06.59.37.19.34 ou 06.86.87.52.30


Recevoir des annonces similaires

Vente à proximité de Milhaud