recherche immobilières sur mobile

Maison à vendre Marseille-10eme-arrondissement 4 pièces 86 m2 Bouches du Rhone (13010) - 340000 €

vente maison 4 pièces 86 m² 4 chambres région Bouches du rhone

340 000 €


Vente Maison 4 pièces MARSEILLE-10EME-ARRONDISSEMENT 13010
Annonce Vente 4 pièces Maison Marseille-10eme-arrondissement 13
Acheter Maison 86 m2 Marseille-10eme-arrondissement
Acheter Maison Marseille-10eme-arrondissement Bouches du Rhone
Acheter Maison Marseille-10eme-arrondissement 340000 euros

Description

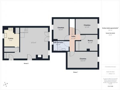
Bienvenue chez Abriculteurs, l'agence familiale qui s'engage à un service d'exception. Découvrez une présentation soignée de ce bien : des photos pro, un plan détaillé et une visite virtuelle immersive pour vous projeter. Faites confiance à notre expertise pour transformer vos projets immobiliers en réussites remarquables. Maison de Type 5 en lotissement résidentiel - Secteur Timone / St-Pierre (13010) avec Terrasse Située dans un lotissement calme et sécurisée du 10ème arrondissement de Marseille, entre la Timone et Saint-Pierre cette maison mitoyenne d'un seul côté de type 5 de 86 m² offre un cadre de vie calme et fonctionnel en plein c?ur de la ville. Bien que nécessitant un rafraîchissement au goût du jour, ses volumes et son agencement représentent une opportunité rare sur ce secteur. Au rez-de-chaussée, la pièce de vie accueille un séjour-salle à manger convivial agrémenté d'une cheminée. Une cuisine indépendante, un WC, ainsi qu'un accès direct au garage intérieur complètent ce niveau, facilitant la circulation et le stationnement au quotidien. Un parking visiteur est disponible dans le lotissement. L'espace de vie s'ouvre sur une terrasse de 30 m² avec un rangement pour le bois et barbecue, véritable havre de paix sans aucun vis-à-vis ni nuisance sonore, idéale pour les moments de détente en extérieur. À l'étage, l'espace nuit se compose de quatre chambres lumineuses et d'une salle de bain fonctionnelle. La distribution a été pensée pour préserver l'intimité de chaque membre de la famille. Côté prestations, la maison est équipée du double vitrage, de volets en PVC, d'une cheminée et d'une climatisation réversible, garantissant un confort thermique tout au long de l'année. Le bien est situé à proximité immédiate des facultés de la Timone, des hôpitaux et des accès autoroutiers, tout en conservant le calme d'un quartier résidentiel. Ce bien au fort potentiel, après quelque
Retour
Autres photos
Plan
Favoris

Contacter l'agence

LES ABRICULTEURS
12 Rue des Halles
75001 PARIS

Toutes les annonces immobilières de LES ABRICULTEURS
06.01.86.24.08 ou 09.71.00.58.38


Recevoir des annonces similaires

Vente à proximité de Marseille-10eme-arrondissement