recherche immobilières sur mobile

Location Local commercial Teste-de-buch 70 m2 Gironde (33260) - 14988 € / an

location local commercial 70 m² région Gironde

14 988 €/an


Location Local commercial TESTE-DE-BUCH 33260
Annonce Location Local commercial Teste-de-buch 33
Louer Local commercial 70 m2 Teste-de-buch
Louer Local commercial Teste-de-buch Gironde

Description

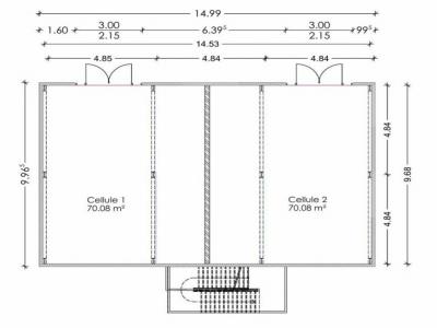
L'agence Consultimo vous propose en exclusivité à la location des locaux commerciaux en RDC et bureaux en R+1 idéalement situé Boulevard Curepipe, en face du port et à 3 minutes à pied de la gare de La Teste de Buch. Le RDC totalise 140 m² de surface commerciale divisible à partir de 70 m². Chaque lot bénéficie d'une vitrine avec entrée indépendante. Les prestations de livraison sont les suivantes : luminaire, faux plafond, cloisons périphériques, un wc + point d'eau, prises périphériques avec RJ, dalle brute avec bouche pore Conditions financières pour un lot de 70m² - Loyer mensuel HT/HC : 1.250 Euros - Provision sur charges HT : 50 Euros/mois - Provision taxe foncière : Pas de taxe foncière sur la première année + provision de 60 Euros HT/mois - Dépôt de garantie : 2 mois de loyer - Paiement mensuel et d'avance - Honoraire de commercialisation : 3.750 Euros HT à la charge du Preneur Disponible 12 mois après accord. Accueil téléphonique du lundi au samedi de 8h à 19h. #RV
Retour
Autres photos
Plan
Favoris

Contacter l'agence

CONSULTIMO
4 rue René Martrenchar
33150 CENON

Toutes les annonces immobilières de CONSULTIMO
05.24.72.75.77 ou 05.57.54.29.11


Recevoir des annonces similaires

Location à proximité de Teste-de-buch