recherche immobilières sur mobile

Location Appartement Cluses 3 pièces 55 m2 Haute savoie (74300) - 866 € / mois

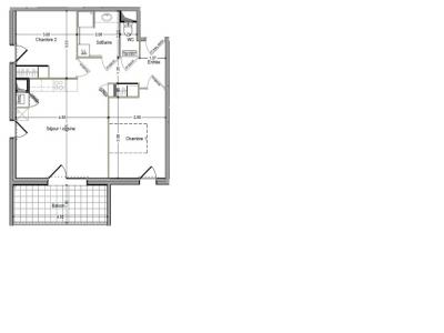
location appartement 3 pièces 55 m² 2 chambres région Haute savoie

866 €/mois


Location Appartement 3 pièces CLUSES 74300

Description

B304 CHATEAU THIERRY - A SAISIR JOLI T3 AVEC BALCON A L'INTERIEUR D'UNE RESIDENCE RECENTE BBC DE STANDING. L'appartement se compose dEURune belle pièce de vie, une cuisine US (meubles haut et bas, hotte, plaque de cuisson et four) donnant sur le balcon, deux chambres en sol parquet dont une avec placard, une salle de bain aménagée avec meuble sous vasque et sèche serviette Deux garages simples fermés en sous-sol. Chauffage individuel gaz. Visiophone Les informations sur les risques auxquels ce bien est exposé sont disponibles sur le site Géorisques : www. georisques. gouv. fr
Retour
Autres photos
Plan
Favoris

Contacter l'agence

CONFIANCE IMMOBILIER MONPLAISIR LOCATION
108, avenue des frères Lumière
69008 LYON

Toutes les annonces immobilières de CONFIANCE IMMOBILIER MONPLAISIR LOCATION
04.72.78.89.87


Recevoir des annonces similaires

Location à proximité de Cluses