recherche immobilières sur mobile

Terrain à vendre Barp 450 m2 Gironde (33114) - 120000 €

vente terrain 450 m² région Gironde

120 000 €


Vente Terrain BARP 33114
Annonce Vente Terrain Barp 33
Acheter Terrain 450 m2 Barp

Description

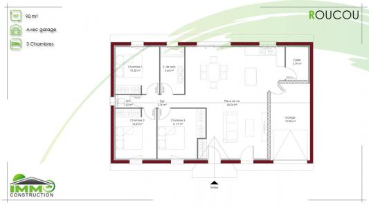
Terrain + Projet de construction - Le Barp - 450 m² - 120000 E (terrain seul) Opportunité à saisir à Le Barp ! Terrain de 450 m², situé dans un environnement calme et résidentiel, tout en étant à proximité des commerces, écoles et commodités. Caractéristiques du terrain : Superficie : 450 m² Emprise au sol de 50 % Terrain plat, bien exposé Hors lotissement Viabilisation en bordure Ce terrain est idéal pour un premier investissement ou un projet locatif. Nous vous proposons un accompagnement complet avec étude de projet personnalisée et construction sur mesure. Prix du terrain : 125 000 E (Prix hors frais de notaire - maison à définir selon vos besoins et votre budget) Pour plus d'informations ou pour organiser une rencontre, contactez : Christopher GLORY O6 I6 69 74 95 IMMOCONSTRUCTION est un constructeur éco-responsable. Nous mettons à votre disposition une large gamme de modèles, contemporains, traditionnels, plain-pied, à étage, une gamme de maisons personnalisables qui saura répondre à vos besoins, vos attentes, qui tiendra compte des contraintes de votre terrain, de la zone constructible. Terrain sélectionné parmi nos partenaires fonciers selon disponibilités. Non soumis au DPE
Retour
Autres photos
Plan
Favoris

Contacter l'agence

IMMO CONSTRUCTION CADAUJAC
1059 avenue de Toulouse
33140 CADAUJAC

Toutes les annonces immobilières de IMMO CONSTRUCTION CADAUJAC
06.16.69.74.95 ou 05.57.59.50.77


Recevoir des annonces similaires

Vente à proximité de Barp