recherche immobilières sur mobile

Location Appartement Martigues 2 pièces 43 m2 Bouches du Rhone (13500) - 719 € / mois

location appartement 2 pièces 43 m² région Bouches du rhone

719 €/mois


Location Appartement 2 pièces MARTIGUES 13500
Annonce Location 2 pièces Appartement Martigues 13

Description

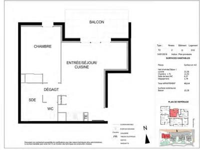
A MARTIGUES, dans un quartier résidentiel bien équipé, dans la résidence LE CLOS DES OLIVIERS, nous vous proposons un T2 (n°D12) de 43.53m² au 2ème étage, comprenant une entrée-séjour-cuisine semi équipée avec plaque et hotte de 22.45m² donnant sur un balcon exposé NORD de 10.46m², une chambre avec placard de 12.57m², une salle d'eau avec WC et un parking intérieur n°48D. Production d'eau chaude et chauffage individuel au gaz. Eau froide, entretien parties communes, entretien ascenseur, compris dans les provisions sur charges mensuelles et donnant lieu à une régularisation annuelle. Les honoraires de location TTC (à la charge du locataire) incluent le montant de rédaction des états des lieux facturé pour 130 euros TTC, après réalisation lors de l'entrée dans les lieux. Disponibilité immédiate. Pour plus de détails sur ce logement, vous pouvez consulter la fiche descriptive de ce bien, sur votre site internet AFEDIM. Les informations sur les risques auxquels ce bien est exposé sont disponibles sur le site Géorisques :
Retour
Autres photos
Plan
Favoris

Contacter l'agence

CM-CIC GESTION IMMOBILIERE
2 Rond Point des Antons CS70304
44703 ORVAULT

Toutes les annonces immobilières de CM-CIC GESTION IMMOBILIERE
08.09.10.28.80 ou 08.10.00.69.36


Recevoir des annonces similaires

Location à proximité de Martigues