recherche immobilières sur mobile

Location Appartement Lens 2 pièces 49 m2 Pas de calais (62300) - 694 € / mois

location appartement 2 pièces 49 m² région Pas de calais

694 €/mois


Location Appartement 2 pièces LENS 62300

Description

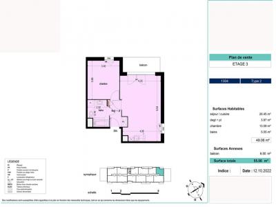
A LENS, dans la résidence neuve LES HAUTS DE MONTGRE, nous vous proposons un appartement T2 n°1304 de 49.06 m² composé d'une entrée avec placard, une salle de bains avec WC, un séjour cuisine donnant sur un balcon de 6 m² ainsi qu'une chambre. Une place de parking n°139. Entretien parties communes, ascenseur et espaces verts communs, compris dans les provisions sur charges mensuelles et donnant lieu à une régularisation annuelle. Les honoraires de location 543E TTC (à la charge du locataire) incluent le montant de rédaction des états des lieux facturé pour 148 euros TTC, après réalisation lors de l'entrée dans les lieux. Disponibilité prévisionnelle au 30/04/2026. Pour plus de détails sur ce logement, vous pouvez consulter la fiche descriptive de ce bien, sur notre site internet AFEDIM. Logement en cours de construction - DPE à venir. Les informations sur les risques auxquels ce bien est exposé sont disponibles sur le site Géorisques :
Retour
Autres photos
Plan
Favoris

Contacter l'agence

CM - CIC GESTION IMMOBILIERE
2 rond point des AntonsBP70904
44703 ORVAULT

Toutes les annonces immobilières de CM - CIC GESTION IMMOBILIERE
08.09.10.28.80


Recevoir des annonces similaires

Location à proximité de Lens