recherche immobilières sur mobile

Location Appartement Toulouse 1 pièce 31 m2 Haute garonne (31300) - 479 € / mois

location appartement 31 m² région Haute garonne

479 €/mois


Location Appartement TOULOUSE 31300
Annonce Location Appartement Toulouse 31
Louer Appartement 31 m2 Toulouse
Louer Appartement Toulouse Haute garonne

Description

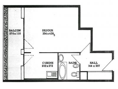
Proximité Zénith, 2 pas tramway, T1 bon état dans résidence fermée L'appartement se compose d'une entrée avec placard, un séjour, une cuisine, une salle de bains avec Wc et un grand balcon Il dispose d'un parking aérien et d'une cave privative LE CHAUFFAGE ET L'EAU CHAUDE/FROIDE SONT INCLUS DANS LES CHARGES LOYER MENSUEL 379 EUR + PROVISION DE CHARGES 72 EUR SOIT 451 EUR CHARGES COMPRISES
Retour
Autres photos
Plan
Favoris

Contacter l'agence

votre agent immobilier JCB IMMOBILIER (Toulouse 31000)
JCB IMMOBILIER
Place Saint Sernin
31000 Toulouse

Toutes les annonces immobilières de JCB IMMOBILIER
05.61.62.70.30


Recevoir des annonces similaires

Location à proximité de Toulouse