recherche immobilières sur mobile

Location Appartement Chambery 2 pièces 42 m2 Savoie (73000) - 576 € / mois

location appartement 2 pièces 42 m² région Savoie

576 €/mois


Location Appartement 2 pièces CHAMBERY 73000
Annonce Location 2 pièces Appartement Chambery 73

Description

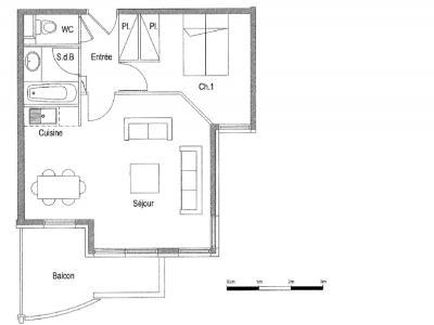
N°17 MELISSE - A SAISIR DANS UNE RESIDENCE RECENTE DE STANDING - BEAU T2 comprenant un grand séjour et cuisine US de 25m2 ouvrant sur joli balcon à vivre, une chambre avec placard de rangement, placard à l'entrée, SDB aménagée, parking privatif en sous sol sécurisé. Consommation d'énergie totale entre 560 EUR et 790 EUR par an (prix moyens des énergies indexés au 1er janvier 2021). Les informations sur les risques auxquels ce bien est exposé sont disponibles sur le site Géorisques : www. georisques. gouv. fr
Retour
Autres photos
Plan
Favoris

Contacter l'agence

CONFIANCE IMMOBILIER MONPLAISIR LOCATION
108, avenue des frères Lumière
69008 LYON

Toutes les annonces immobilières de CONFIANCE IMMOBILIER MONPLAISIR LOCATION
04.72.78.89.87


Recevoir des annonces similaires

Location à proximité de Chambery