recherche immobilières sur mobile

Location Appartement Chambery 3 pièces 66 m2 Savoie (73000) - 840 € / mois

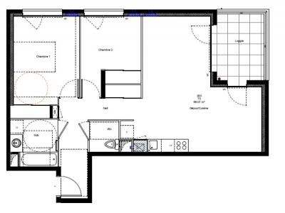
location appartement 3 pièces 66 m² 2 chambres région Savoie

840 €/mois


Location Appartement 3 pièces CHAMBERY 73000

Description

C203 LES PIERRES MARINES : PROFITEZ D'UN BEL ESPACE DE VIE DE PRES DE 28M² AVEC CUISINE US EQUIPEE ET MEUBLEE (PLAQUES VITRO, FOUR, HOTTE, MEUBLES HAUTS ET BAS) POUR CE T3 DANS RESIDENCE DE STANDING A FAIBLE CONSOMMATION ENERGETIQUE. Entrée avec placard mural, 2 chambres en sol parquet chacune équipée d'un rangement mural. Salle de bain avec meuble sous-vasque et sèche-serviettes. TERRASSE DE PRES DE 7M² AVEC VUE SUR MONTAGNE. Garage fermé en sous-sol sécurisé. CHAUFFAGE IND AU GAZ. VISIOPHONE. PROXIMITE DU CENTRE VILLE ET DES COMMERCES. Consommation d'énergie totale entre 434 EUR et 587 EUR par an (prix moyens des énergies indexés au 1er janvier 2021). Les informations sur les risques auxquels ce bien est exposé sont disponibles sur le site Géorisques : www. georisques. gouv. fr
Retour
Autres photos
Plan
Favoris

Contacter l'agence

CONFIANCE IMMOBILIER MONPLAISIR LOCATION
108, avenue des frères Lumière
69008 LYON

Toutes les annonces immobilières de CONFIANCE IMMOBILIER MONPLAISIR LOCATION
04.72.78.89.87


Recevoir des annonces similaires

Location à proximité de Chambery